2 этаж
1 этаж

Двухэтажный дом из газоблоков с гаражом 

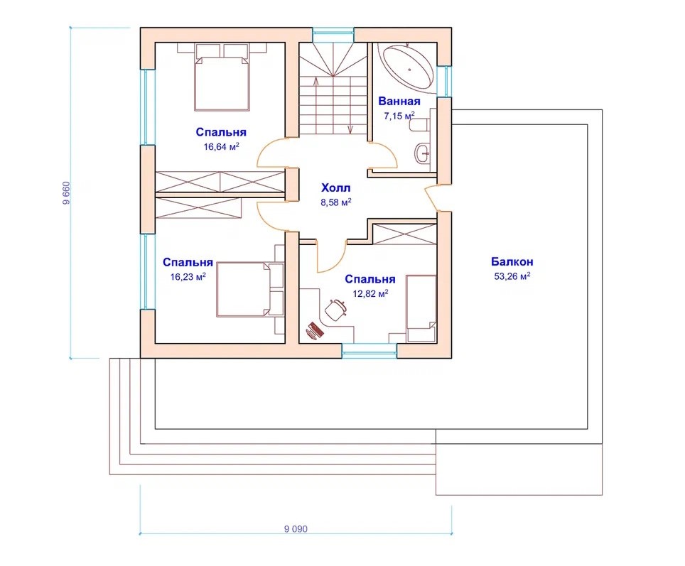
планировка 2 этажа  двухэтажного дома с плоской крышей
планировка 1 этажа  двухэтажного дома с плоской крышей
Планировка
Количество спален
3
Количество санузлов
2
Габаритные размеры
12,16×13,49м
Площадь застройки
153,5 м2
Площадь внутри
232м2

Дом из газоблоков с габаритными размерами 12 на 13 метров. Современный формат.
Забудьте о сложном. Это — чистая геометрия комфорта.

  • Фактура: Теплый и дышащий газобетон.
  • Стиль: Лаконичная современная архитектура с плоской кровлей.
  • Жизнь: Большой балкон как продолжение гостиной. Пространство, где можно дышать полной грудью.
  • Функционал: 3 спальни, 2 санузла, интегрированный гараж. Все, что нужно, и ничего лишнего.

Дом для тех, кто ценит простые формы и сложные ощущения.  
Это не типовой проект. Это — архитектура для тех, кто смотрит вперед.

Дом в базовой комплектации
Отделка фасада: (возможные варианты)
облицовочный кирпич
декоративная штукатурка
комбинированная отделка фасада 
Установка окон и входной двери (стандартный вариант)
      Окна: ПВХ профиль 70 мм
  • двойной стеклопакет.
  • противовзломные ручки.
    Входная дверь: металлическая дверь
  • толщина стали короба — 1,5 мм
  • два контура уплотнения.

+ Предчистовая отделка
Отделка стен:  штукатурка стен и откосов. 
На стены останется только поклеить обои.
Система отопления: индивидуальная
  • теплый пол на всем этаже
Отделка полов: цементно-песчаная стяжка.
Останется только уложить плитку или ламинат.
Электроснабжение: разводка по дому
  • выводы на освещение
  • установка розеток и выключателей
  • устройство заземления

Водоснабжение и водоотведение: разводка по дому
  • монтаж трубопроводов до запорной арматуры в СУ и кухне
  • установка счетчиков горячей и холодной воды
+ Отделка фасада
9 800 000 рублей
Фундамент: монолитная плита
  • марка бетона М250
  • арматурные каркасы d12 A500
  • толщина песчаной подушки – 0,3 м
  • толщина подушки из щебня – 0,3 м
  • гидроизоляция — профилированная мембрана 
  • гильзы под коммуникации
Пол второго этажа: пустотные ж/б плиты

Крыша: плоская
  • гидроизоляция – ветровлагозащитная мембрана
  • система двойного капельника
  • защита от гнездования птиц и ос
  • вентиляционные грибки
  • трубчатая система снегозадержания
Стены: газобетонный блок D500
  • толщина наружных стен — 500 мм
  • толщина внутренних стен — 300 мм
  • перемычки — газобетонные армированные
  • перегородки — газобетонные
  • армирование кладки — арматура d10 в штробах
  • монолитный пояс  железобетонный утепленный

Дом в базовой комплектации

Дом по проекту выполнен из газобетонных блоков с отделкой фасадов термопанели. Готовы построить для вас дом под ключ или выполним отдельный этап работ.  Возведем дом за один сезон, но при необходимости готовы разделить строительство на два и более года. 
Варианты исполнения и стоимость